Start Your Story With Us – Interest Rates as Low as 2.99%* (6.23% APR)* – Plus Closing Costs Covered!

New Year Savings!
Legacy II

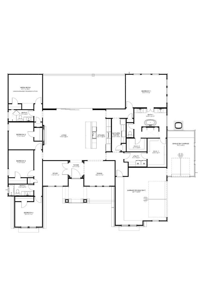
Frio II – King Oaks SingleFamily

6750 King Mills Drive, Salado TX 76571
  • 5 Bedrooms
  • 3 Bathrooms
  • 3 Car Garage
  • Starts at 3,082 SQ. FT
  • Priced from $756,504
* Elevations may vary based on community

Explore this floorplan

Frio II – King Oaks

Main Level

Stop by for a visit

Address

Hours

Business Hours:
Monday-Friday: 8am – 5pm

Model Home Hours:
By Appointment Only

Phone

512-960-3792

Sales Team

  • Sales Team

    Sales Team

This community is owned by Flintrock Builders.

Be the First

Be the first to know about our Central Texas communities and homes, including early access to pricing, new home plans and VIP events.

Curious about this home?

Whether you’re just getting started or ready to schedule a tour, our online team is here to help.