Start Your Story With Us – Interest Rates as Low as 2.99%* (6.23% APR)* – Plus Closing Costs Covered!

New Year Savings!
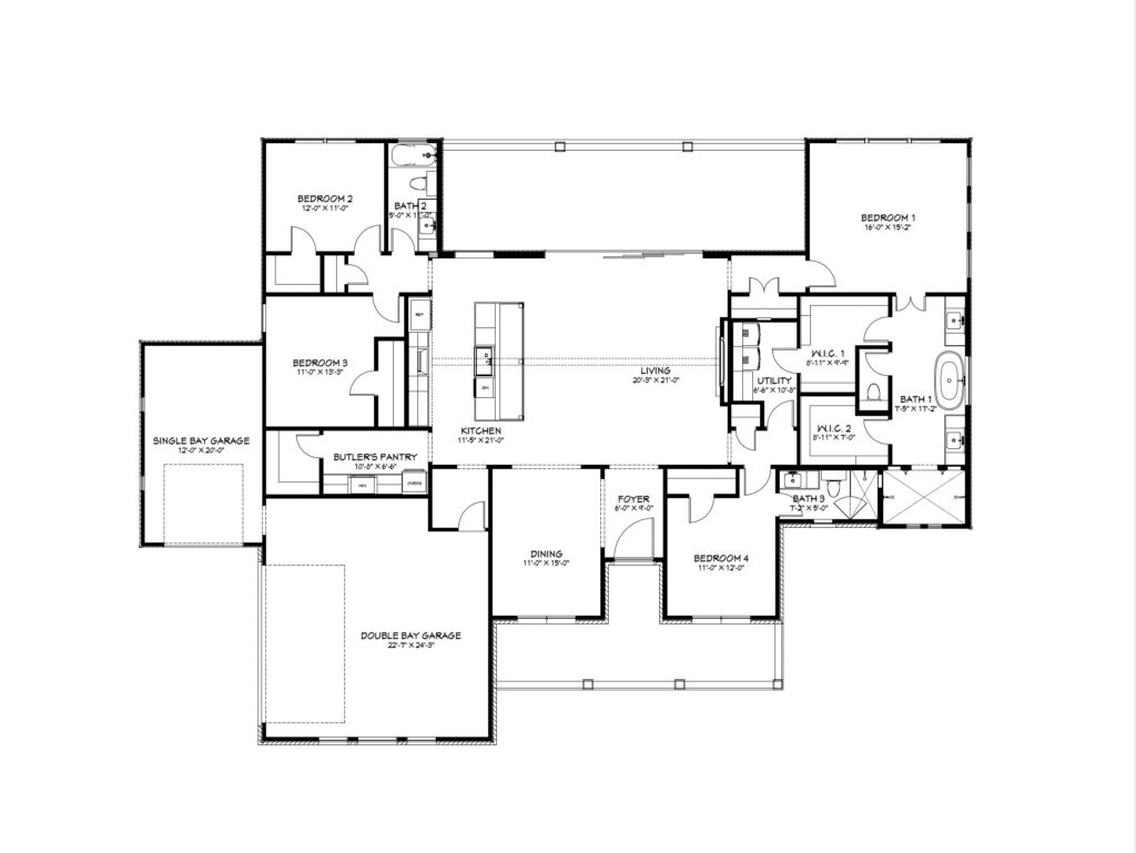
Legacy II

Concho II SingleFamily

King Oaks »
  • 4 Bedrooms
  • 3 Bathrooms
  • 3 Car Garage
  • Starts at 2,619 SQ. FT
  • Priced from $646,990
* Elevations may vary based on community

Explore this floorplan

Concho II – King Oaks

Main Level
Main Level

Be the First

Be the first to know about our Central Texas communities and homes, including early access to pricing, new home plans and VIP events.