Your Home, Your Style, Your Story – Interest Rates as Low as 4.99%* (5.691% APR)* – Plus Closing Costs Covered!

Spring Savings!
Pioneer

Palo Duro SingleFamily

The Preserve At Thousand Oaks Single Family »
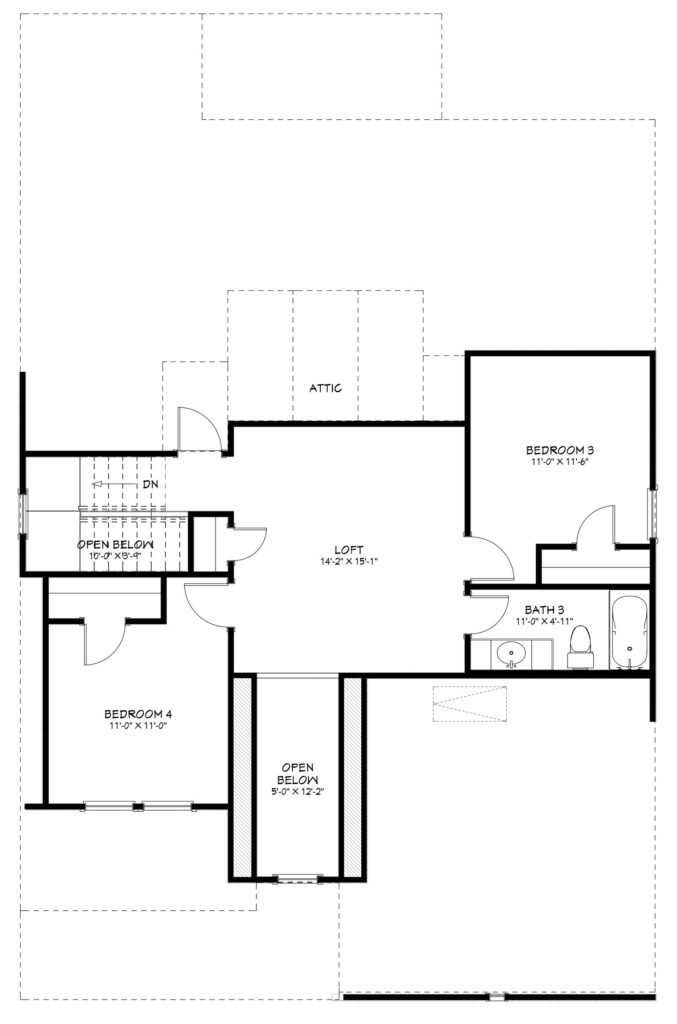
  • 4 Bedrooms
  • 3 Bathrooms
  • 2 Car Garage
  • Starts at 2,325 SQ. FT
  • Priced from $358,990
* Elevations may vary based on community

Explore this floorplan

Palo Duro – The Preserve at Thousand Oaks

Ground Level
Upper Level

Be the First

Be the first to know about our Central Texas communities and homes, including early access to pricing, new home plans and VIP events.