Your Home, Your Style, Your Story – Interest Rates as Low as 4.99%* (5.691% APR)* – Plus Closing Costs Covered!

Spring Savings!
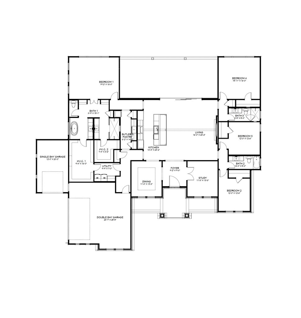
Legacy II

Brazos II – Daniels Mountain SingleFamily

508 Vale Pond Spur, Georgetown TX 78633
  • 4 Bedrooms
  • 3 Bathrooms
  • 3 Car Garage
  • Starts at 3,342 SQ. FT
  • Priced from $889,990
* Elevations may vary based on community

Explore this floorplan

Brazos II – Daniels Mountain

Main Level

Stop by for a visit

Address

Hours

Business Hours:
Monday-Friday: 8am – 5pm

 

Model Home Hours:
By Appointment Only

 

Self Guided Tours available Monday-Sunday 9am-7pm

Phone

512-866-1490

Sales Team

  • Dana Burton

    Dana Burton

This community is owned by Flintrock Builders.

Be the First

Be the first to know about our Central Texas communities and homes, including early access to pricing, new home plans and VIP events.

Curious about this home?

Whether you’re just getting started or ready to schedule a tour, our online team is here to help.